Описание
| Тип изделия | Крышка |
| Материал | Сталь |
| Защитное покрытие поверхности | Горячее цинкование |
| Подходит для (листового) кабельного лотка | Нет |
| Подходит для лестничного лотка | Да |
| Цвет | Светло-серый |
| Вид/ марка материала | Сталь оцинкованная |
| Гарантийный срок эксплуатации | 7 лет |
| Гарантийный срок хранения | 7 лет |
| Вес за единицу хранения | 6,2 кг/шт |
| Тип крепления | Зажим/фиксатор крышки |
| Есть штрихкод на каждой штуке товара | Да |
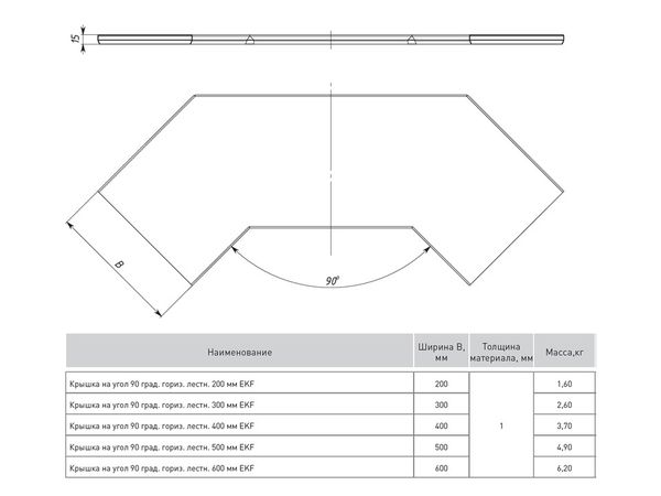
Углы лестничные используются для изменения направления кабельных трасс на базе лестничных лотков, как в горизонтальном, так и в вертикальном направлениях. Горизонтальные аксессуары доступны в двух вариантах — с углами выполнения 45° и 90°, предоставляя гибкость при построении трасс. Вертикальные углы представлены шарнирными, из которых можно сформировать любое изменение направления кабельной трассы по вертикали

